An illustration by Ernst Haeckel was duplicated and interpreted into a series of forms using the deformation tools of the software modo. The forms with the most potential for architectural space were selected and developed into an experimental observation tower, to be located at the Don Edwards San Francisco Bay National Wildlife Refuge.
Course: Architecture 101, UC Berkeley
Instructor: Ronald Rael
An exterior device for sitting and eating that engages the concrete planters outside of Ramona's Cafe at UC Berkeley. An all wood structure that utilizes different types of wood joinery.
Course: Architecture 160, Introduction to Construction, UC Berkeley
Instructor: Aaron Brumo, Yes Duffy
GSI: Brian Gillett
In collaboration with: Janice Leong, Francis Pham, Loan Vu
A portable steel structure with all metal connections that enables one to traverse 60".
Course: Architecture 160, Introduction to Construction, UC Berkeley
Instructor: Aaron Brumo, Yes Duffy
GSI: Brian Gillett
In collaboration with: Janice Leong, Francis Pham, Loan Vu
Hand drawn illustrations.
Course: Environmental Design 1A, UC Berkeley
Instructor: Joe Slusky, Chip Sullivan
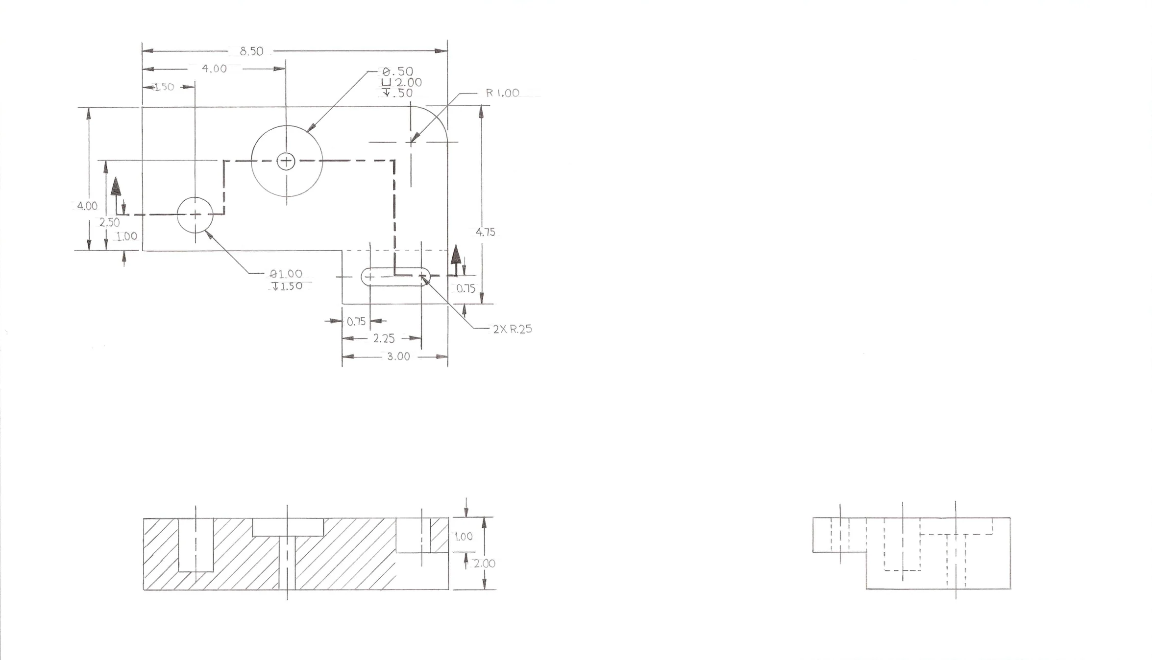
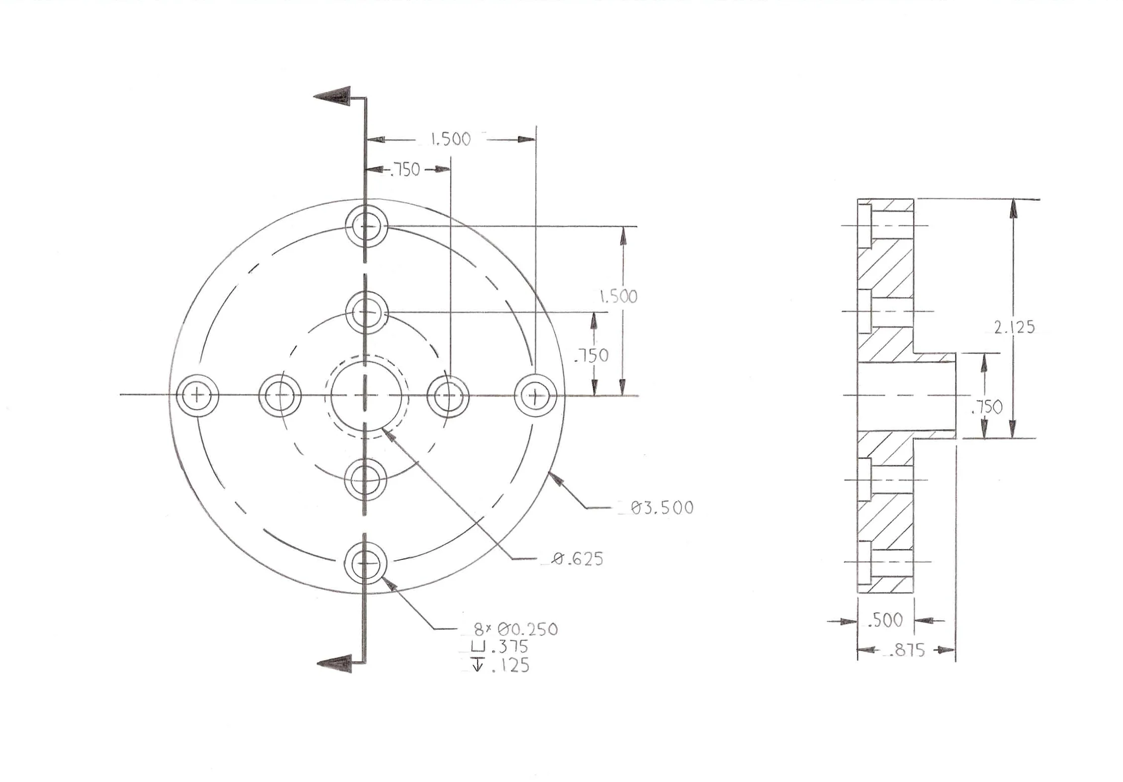
Manual drafting: machine drafting, isometrics, obliques.
Course: Drafting, Mark Keppel High School